Villarrubia de los Ojos. El Pleno del Ayuntamiento aprueba el proyecto de la futura piscina climatizada
Se han fallado los premios del 6º Concurso Internacional de Fotografía Día Mundial de los humedales, organizado por el Ayuntamiento de Villarrubia de los Ojos (Ciudad Real), a través de su Agencia de Desarrollo Local, y patrocinado por Acciona Aguas Servicios SL.
De entre las más de doscientas imágenes recibidas a concurso desde numerosos puntos de nuestra geografía y de fuera de nuestras fronteras, la imagen titulada “Torre de San Juan”, del valenciano José Beut Duato, tomada en el Parque Natural del Delta del Ebro, se ha alzado con el primer premio del concurso, dotado con una cuantía económica de 300 euros.
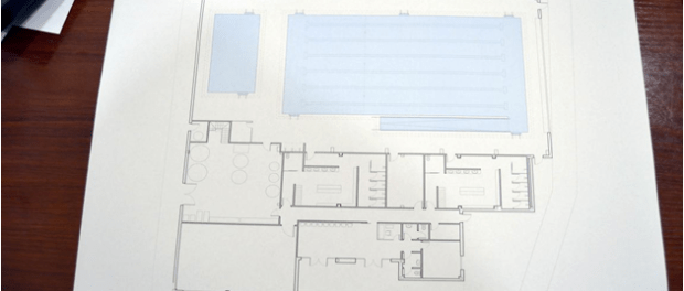
El Pleno del Ayuntamiento de Villarrubia de los Ojos (Ciudad Real) ha aprobado el proyecto para la construcción de la futura piscina cubierta de la localidad. En la sesión ordinaria del mes de agosto presidida por la ‘popular’ Encarnación Medina, con los votos a favor del Grupo Popular y de VOX, se dio luz verde a esta infraestructura que tendrá un presupuesto de 1,5 millones de euros.
La nueva infraestructura, que se construirá en una parcela de 2.500 metros cuadrados aneja al Auditorio Municipal, contará con dos piscinas y todos los criterios de accesibilidad vigentes para facilitar su uso a toda la población; el proyecto ha sido realizado por el arquitecto municipal, y entra ahora en fase de adjudicación.
Encarnación Medina, alcaldesa de Villarrubia de los Ojos, recuerda que se trata de un proyecto ilusionante que además “es uno de los que llevábamos en el programa electoral, y es una demanda social, ya que son numerosos los colectivos del municipio que nos han demandado la necesidad de este servicio, algunos ya lo hacen en otros municipios cercanos a Villarrubia, sobre todo aquellos que necesitan terapias para mejorar su salud”.
El futuro complejo acuático contará con dos piscinas, una de ellas de 25×12 metros cuadrados, y otra infantil con usos terapéuticos de una dimensión de 8×10 metros cuadrados. Esta última piscina, con una profundidad entre 1,20 y 1,60 se podrá realizar también para desarrollar deportes acuáticos como el aquagym o el aquarerobic. La piscina grande contará con rampas de acceso para facilitar su uso a mayores y discapacitados.
El edificio albergará también una sala para la maquinaria, otra sala diáfana para diversos usos, aseos y dos vestuarios adaptados. Además, para reducir el gasto energético, el edificio estará dotado con placas solares de última generación con el objetivo de mejorar su sostenibilidad.
Otros asuntos de Pleno
Además del proyecto de la piscina, la Corporación villarrubiera aprobó también la adjudicación definitiva del ciclo del agua en una sesión en la que se dio cuenta del cumplimiento del Plan de Reducción de la Deuda, que se ha bajado al 75% en un plazo inferior a tres años, y del periodo del pago medio a proveedores. También se informó del cumplimiento del objetivo de Estabilidad Presupuestaria, del objetivo de Endeudamiento y del objetivo de la Regla de Gasto, todos ellos en positivo. Así, durante la sesión ordinaria de agosto también se aprobó la subida del 1% en los salarios de los empleados del Ayuntamiento.
El Pleno también dio el visto bueno al plan municipal financiado íntegramente por el Ayuntamiento de becas para libros y material escolar para niños de 2º y 3º de Educación Infantil, 45 euros que los beneficiarios podrán canjear en las imprentas del pueblo, así como a la continuidad del programa que Proyecto Hombre ha realizado en los institutos con alumnos de 3º y 4º de ESO para la prevención del consumo de drogas y para la resolución de conflictos en el ámbito familiar y escolar, que seguirá contando con el respaldo municipal.
Finalmente, se debatieron dos mociones de urgencia presentadas por los grupos PP y VOX, una de ellas para exigir al Gobierno Regional la puesta en marcha del servicio de ambulancia durante las 24 horas en el municipio y otra para pedir a la Junta que se firmen de forma inmediata todos los convenios sociales y se proceda al pago de la deuda que actualmente el Gobierno regional mantiene con el Ayuntamiento y que asciende a casi 680.000 euros. La alcaldesa aseguró que el Ayuntamiento continuará costeando estos servicios sociales hasta que la Junta “quiera pagar lo que le corresponde y deje de asfixiar a nuestro Ayuntamiento y a los vecinos de nuestro municipio”.

Deja un comentario